聯系我們
銷售熱線:137-9166-1766
電話:0536-3660707
傳真:0536-3661616
郵箱:wfboyou@163.com
地址:山東省濰坊市臨朐縣冶源街道安達山工業園1788號
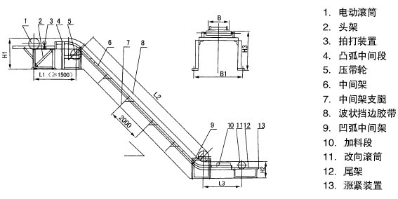
DJ型大傾角擋邊帶式輸送機

一、概述:
該系列產品主要用于散狀物料的大傾角連續輸送,采用具有波狀擋邊和橫隔板的輸送帶。輸送傾角為0-90°(70°以下最好),其特點為:用一臺設備在狹小的空間可完成水平傾斜輸送,具有通用帶式輸送機水平或小傾角輸送可靠高、節能和斗式提升物料可靠經濟的優點。本系列產品廣泛用于煤炭、糧食、建材、化工、水電和冶金等部門,在環境溫度為-19℃-+40℃內輸送堆積密度為0.5-2.5t/m3的各種散裝物料,對于輸送有特殊要求的物料,如耐高溫或具有酸、堿性、油類物質、有機浴劑等成分的物料,須在訂貨時提出,采用相應材料的特殊擋邊輸送帶。
二、外形圖:
三、選型:
根據輸送物料特性、傾角及輸送量的大小,參照表1 及表2,確定輸送機的帶寬,擋邊高及帶速大小。其中:
(1)擋邊輸送帶分常溫(-20~50℃)、耐熱(120℃以下),耐高溫(180℃以下)及耐酸耐堿耐油等幾種;
(2)輸送大塊物料時,擋邊應選用偏高的;也可不增大帶寬和擋邊,用提高帶速(1.25m/s、1.6m/s、2m/s)的辦法提高輸送量;
(3)輸送高度最大70m,最大粒度應小于擋邊高30-40mm。
(4)上托輥間距一般為1.2m,下托輥間距一般為1.2m,傾角大于60°時為2.4m,防跑偏擋輥間距為3-6m。L3標準為2200,最小1500。
(5)功率估算按下表。
四、使用說明:1、本表僅適于初步簡易選型,最終選型結果應按計算結果確定。
2、本表中數據按膠帶線速度V=1m/s,橫隔板間距ts=0.25m,物為容量γ=1t/m3,提升高度H =10m為假定條件計算,如條件不同應適當換算。
3、選型舉例:
已知:輸送物料為煤,容量γ=0.8t/m3,物料粒度A《40mm,輸送傾角β=45°,輸送量Q =85t/h,輸送高度15m,求所需帶寬和帶速以及電機功率。先求得膠帶機輸送量應為85t/h÷0.5t/m3,=106.25m 3/h,然后在表中45°傾角列中查到B=800,H=160的輸送量96.6m 3/h最為接近,再將線速度改為1.25m/s,則膠帶輸送量成為96.6m 3/h×1.25=120.75m 3/h,即可滿足使用要求。相應所需功率為4.59Kw×15m÷10m×1.25=8.6kw,可選電機功率11KW。4、橫隔板形式根據輸送機傾角大小選定;
18°<β≤40°T型,40°<β≤60°C型,60°<β≤90° TC型
帶寬B 400 500 600 800 1000 1200 1400 擋邊高H 60 80 80 120 120 160 160 200 160 240 200 300 240 400 最小橫隔板間距 100 120 120 160 160 200 200 250 200 280 250 350 280 400 輸送量
(原煤、帶速1m/s)
M3/h35° 28 36 50 71 104 120 157 195 216 327 331 466 500 794 45° 19 25 33 57 83 97 127 157 175 271 267 384 414 680 60° 15 19 23 40 58 59 90 112 124 197 190 278 302 524 90 9 11 15 21 31 37 48 60 66 106 102 149 162 281 外型尺寸 頭輪帶面高H1 1200 1350 1615 1815 2000,2200 2300,2525 2525,2700 尾輪帶面高H2 690 800 950 1115 1250,1400 1600,1700 1600,1700 中間段帶面高H3 700 800 850 1115 850,1200 1400,1500 1600,1700 中間段地腳高B1 580 850 1020 1220 1440 1690 1890 注:本表中輸送量按最小橫隔板間距計算,帶速增減,輸送量成倍增減,其他物料可參見此表確定。
粒度mm ≤100mm ≤160 ≤250mm 速度 m/s 擋邊高≤120mm 傾角≤30° 2 1.6 傾角≤角60° 1.6 1.25 擋邊高≤240mm 傾角≤30° 2.5 2 1.6 傾角≤60° 1.6 1.6 1.0 大傾角膠帶輸送機簡明選型計算表格
帶寬
B(mm)擋邊高
H(mm)30°40°60°75°輸送量
(m 3/h)功率
(Kw)輸送量
(m 3/h)功率
(Kw)輸送量
(m 3/h)功率
(Kw)輸送量
(m 3/h)功率
(Kw)50012052.82.8563.21.8626.61.3219.80.9865012077.63.9755.32.6391.85291.351601055.4476.33.5756.22.5641.61.868001601336.9996.64.5971.23.2852.62.382001959.8159.87.07117.65.0786.53.66



